【推拉門窗防盜塊怎么安裝?】
推拉門窗防盜塊如何安裝,是在工地安裝還是在車間安裝好啊! 如果在車間安裝好,那怎么工地怎么安裝扇子;如果在工地安裝,該怎么裝!
求解,求圖

2015-3-11
以兩扇推拉窗為例,推拉扇的安裝方法常規是內視(左內右外),因為右扇安裝在室外軌道,室外軌道低,窗扇與窗框的搭接間隙大容易拆卸所以說防盜塊應該裝在室外扇(既內視右扇),推拉窗一般要裝防盜塊,防風塊還有防撞塊三種,防盜塊一般在工廠組裝之前預裝進去,裝在上框槽口之間,安裝窗扇之前先拔到一邊去,待窗扇安裝就位之后再將其推到右扇頂部居中與窗框之間固定即可。

2015-3-17
一般都是在車間裝好的,而且防盜塊也是可以拆卸的,所以不存在在車間裝了,到工地就拆不了的情況。

2015-3-23
防盜塊是等門扇安裝好以后在安裝的!
看推拉上滑軌,有發安裝槽,如果框在工廠組裝好了,最好是在車間裝進去,如果是沒安裝槽,工地裝,

2015-3-31
防盜塊一般都是在車間安裝,針對不同的型材類別分工地安裝和車間安裝,簡單型材一般都選擇在車間組裝外框時安裝,有一些復雜斷橋材料防盜塊的安裝在開啟扇上,很多時候會選擇在工地安裝調試窗扇的時候安裝。

2015-4-1
推拉門窗防盜塊的安裝主要根據鋁合金型材來決定,有的有槽口的車間組框前先裝,工地安裝窗扇前先劃到一邊,待窗扇上好之后再劃到中間固定。

2015-4-6
一般是在車間組裝的時候安裝進上滑槽口,裝窗扇的時候把防盜塊推至另一端,待窗扇安裝完成后進行固定

2015-4-17
不能一概而論;這要看具體型材和防盜塊種類形狀而定;1有的是前置的組裝時已將防盜塊穿入匹配的橫框中;防盜塊在橫框中可左右滑動;然后根據扇在關閉狀態下記住力挺的位置然后禁錮防盜塊;2后置式是扇安裝好后在關閉狀態下記住扇力挺在橫框上的位置然后用螺釘安裝防盜塊。而且每個力挺上都要有一個防盜塊;

2019-5-7
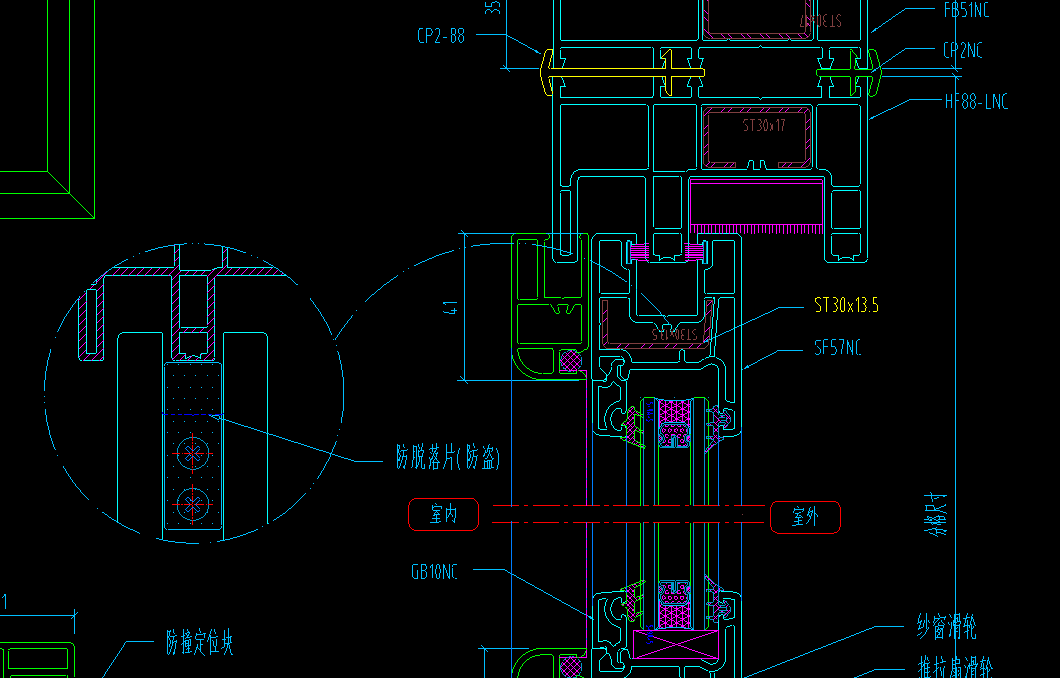
在現場安裝,扇就位才能裝,看圖和圖片樣品就明白了,如下圖:
圖紙是塑鋼推拉窗的,圖片是鋁合金推拉窗上的,防盜防脫落比防風塊牢靠
共9條 頁次:[1/1] 首頁 1 尾頁 |