【55斷橋門五金鎖孔的銑法】
請出設計圖謝謝,詳細點的
已有6個回答
我來回答一下

鄒祖清
2015-9-20
你好,你的問題涉及到別人的商業秘密,一般人是不會提供詳細的設計圖給你的。試想,你辛辛苦苦設計出的技術圖紙,你會這么大方的、無條件的提供給別人么?
自己努力去鉆研吧,自己提出的問題,若自己持之以恒的努力去解決,加上自己的技術底子,你能行的,朋友。

張韜
2015-9-25

張韜
2015-9-25

張韜
2015-9-25
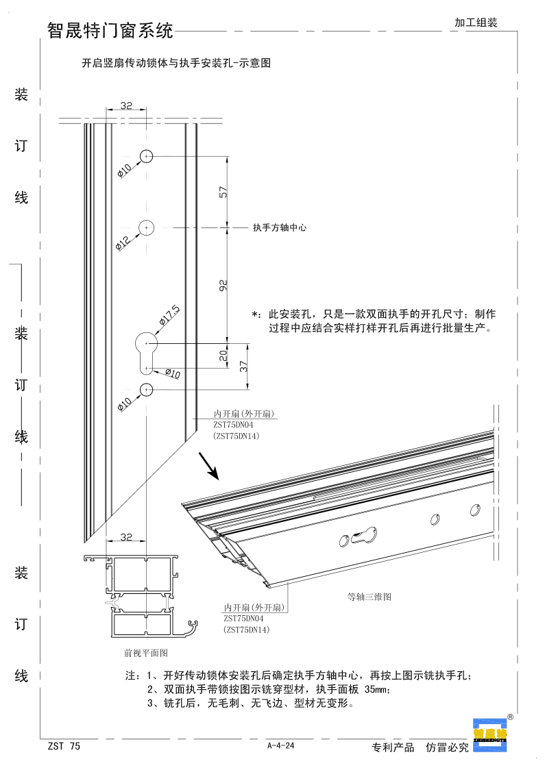
上面的工藝圖可以參考一下

張韜
2015-9-25

歷史用戶
2015-10-13
你的問題太難了,型材廠家不同型材就不同,還有五金,沒有這些等系是給你出不了詳細的節點的
共6條 頁次:[1/1] 首頁 1 尾頁 |